Accéder au contenu principal

Coprolo Troènes (2021-2023)

Raison sociale: Société coopérative d'habitation COPROLO TROENES
Statut: Immeuble HLM-LUP en droit de superficie
Adresses: Chemin des Troènes 7, 1213 Petit-Lancy
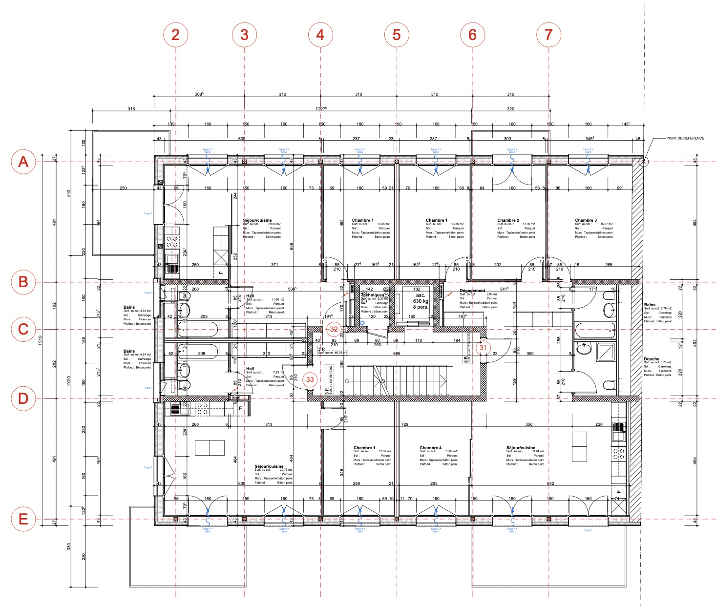
Nombre d'appartements: 10 logements répartis entre le rez et les étages 3, 4 et 5 (6 x 3 pièces, 1 x 5 pièces et 3 x 6 pièces).
1 résidence et des appartements adaptés pour personnes présentant des déficiences intellectuelles sur les étages 1 et 2 (ainsi qu’un studio indépendant au rez), administrés par la fondation Sgipa
12 places de parking intérieur dans le garage souterrain.
Date de construction: 2021-2023 
Architecte: BARU SA (conception du projet – responsable Mauro RIVA)
BC-A architectes Sàrl (direction des travaux – responsable Gérard BARON)
Mise en location: 1er trimestre 2023
Situation: Dans le quartier dit du Plateau de Lancy. Zone d’habitation en périphérie urbaine, environnement calme. Transports publics et commodités proches. Ecole primaire dans le voisinage immédiat.
Caractéristiques: Rez + 5 étages.
Salle commune, buanderie et local poussettes au rez-de-chaussée.

Historique du projet

Une longue histoire pour se mettre en route. A la suite de l'adoption du PLQ en 2002, Coprolo se voit attribuer une parcelle afin d'y construire un immeuble de type Coopérative. Le terrain étant relativement petit, des démarches sont effectuées pour acquérir la parcelle adjacente: A ce jour, ce dossier est toujours en cours et Coprolo décide alors de ne construire que sur sa propre parcelle de manière à ne pas freiner le projet.

En parallèle, Coprolo pousse alors la réflexion d'esprit coopératif et propose à la fondation Sgipa de créer un mixte entre logements coopératifs et résidence/logements pour personnes présentant des déficiences intellectuelles avec infrastructure adaptée.

C'est ainsi qu'en février 2015, la Direction des Autorisations de Construire de l'Etat de Genève donne son préavis de consultation favorable! On peut dire que maintenant Coprolo Troènes existe !

20.06.2022 : Le chantier avance bien et la collaboration avec la SGIPA est constructive au sens propre et au figuré. 
Aucun retard n'est annoncé pour le moment. Les appartements sont prévus pour le premier trimestre de 2023. 

01.03.2021 : Le chantier peut enfin démarrer ! Durée du chantier : environ 18 mois.

11.08.2015 : Recours déposé par des opposants : blocage du projet en l'état

16.06.2015: Publication dans la Feuille d'Avis Officielle

09.06.2015 : Autorisation de construire délivrée !

24.02.2015 : L'opposition est retirée

23.02.2015: L'Office Cantonal du Logement donne son accord de principe !

15.02.2015 : Le plan financier est déposé, la requête en autorisation de construire est acceptée sous réserve d'une opposition.