Accéder au contenu principal

Coprolo Luserna (1975)

Raison sociale: Société coopérative d'habitation COPROLO LUSERNA
Statut: Loyer libre, en pleine propriété
Adresse: 24-26, rue Edouard-Rod, 1203 Genève
Nombre d'appartements: 34 appartements.
(5 Studios, 6 x 1.5 pièce, 1 x 2.5 pièces, 9 x 3 pièces, 9 x 4 pièces, 5 x 4,5 pièces, 2 x 5 pièces et 2x 6 pièces).
2 locaux commerciaux.
Parking: souterrain de 20 places et 12 box.
Date de construction: 1975
Architecte: Rodolphe Garabedian & David Vidal pour la surélévation en 2022
Remarque: Acquisitions en 1976 (no 24) et en 1999 (no 26)
Mise en location: 1976. Sortie du régime de subventionnement en 2001
Situation: Quartier urbain plutôt calme à proximité des voies de circulation
Caractéristiques: Immeubles avec locaux commerciaux, appartements «standards», traversants

Luserna: une surélévation réussie

Forte d’une bonne collaboration avec l’architecte David Vidal lors de la rénovation de l’isolation de ses façades, la filiale de Luserna mandate à nouveau cet entrepreneur indépendant en 2010 afin de réaliser la surélévation de l’immeuble.

Ce projet qui a presque compromis son étude d’architecte au moment où les autorisations furent refusées, les a finalement obtenues... et le voici aujourd’hui réalisé. 

30 septembre 2024

La Coopérative pour la Promotion du Logement, faîtière de toutes les « Coopératives d’habitation Coprolo » est citée en exemple dans la revue HABITATION, pour ses travaux de surélévation de sa fililale Luserna.

Découvrez l'article complet lors de votre prochaine visite aux bureaux de "la Centrale", ou en suivant notre page Instagram : @coprolo_geneve !

Surélevé de deux étages, l’immeuble abrite six appartements supplémentaires, un nouvel ascenseur a été posé et le bureau du rez-de-chaussée rénové. Une fresque réalisée par l’artiste GAMO donne une allure accueillante de l’entrée de l’immeuble aux murs de chaque étages. Le jardin commun abrite un espace de détente avec un banc sous un arbre et des potagers urbains réalisé par les coopérateurs au printemps 2024.

Les appartements ont tous été attribués et le bureau est loué à la Centrale qui y tient ses séances et permet à la Secrétaire Générale de travailler dans des conditions agréables.

Une réussite que vous pouvez admirer depuis la rue Edouard-Rod dans le sympathique quartier de Vieusseux. 

Pour l'histoire voici quelques images de l'immeuble en 2018...

Historique de la surélévation

Juin 2015: Le projet d'extension de deux étages (8 et 9ème) a été déposé au service des autorisation de construire.

Octobre 2020: L’isolation périphérique du bâtiment et le changement des fenêtres apportent depuis 2015 une qualité de vie et des économies de chauffage. En 2020 devrait démarrer la surélévation de 2 étages permettant la mise à disposition de 6 nouveaux appartements.

Mars 2021: Les travaux de surélévation ont débutés en et les nouveaux appartements seront disponibles en août 2022.

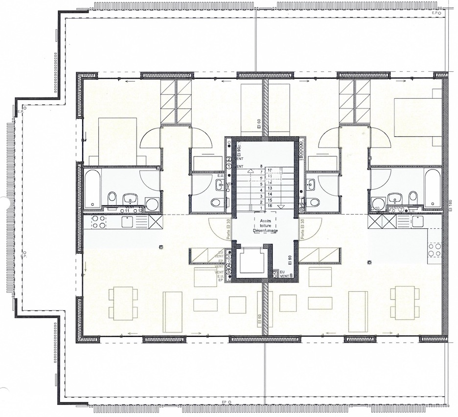
Aux 7e et 8e étages, il y a 3 appartements de 1 x 3 pièces, 1 x 5 pièces et 1 x 6 pièces. Au 9e étage, il y a 2 x 4 pièces.

Une fois les travaux terminés, l'immeuble comprendra 9 étages et 34 appartements, soit 6 de plus.

Juin 2022: Les travaux de surélévation avancent bien. La toiture est étanche, un nouvel ascenseur sera installé courant juin et les appartements sont en finalisation. Les échafaudages vont descendre progressivement pour le plus grand bonheur des locataires. 

Au sous-sol également des aménagements et améliorations sont en cours afin de proposer un local à vélo aux locataires.  

Octobre 2022: Les travaux de surélévation sont terminés et de nouveaux sociétaires emménagent dans les étages suppérieurs... mais sans ascenseur...! Quel courage ! 

Novembre 2022: L'ascenseur qui mène les sociétaires jusqu'au 9ème étage est enfin fonctionnel et c'est avec beaucoup de plaisir que les sociétaires arrêtent de faire leur exercice quotidien en délaissant les escaliers. 

Quelques images après surélévation (2023)

Création d'une fresque (juillet 2023)

L'artiste genevois GAMO créé une fresque en graffiti sur toutes les parois de la cage d'escalier de l'immeuble. Une fresque en couleurs qui ravit les sociétaires-locataires et leurs visiteurs.

Plans de surélévation Luserna (2022)